這座位于愛達荷州太陽谷南部的Big Wood住宅的設計源自當地的農業風情和極簡主義理念。建筑師馬克·德雷烏斯(Mark de Reus)用這個家宅慶祝他的建筑師生涯,他將三十五年的實踐經驗融入了這項他最私人的工作中。該項目的特點是以創新、無序而清晰的設計、自然材料的使用、細致的細節和工藝,以及其宜居性.最重要的是,設計用簡單性掩蓋了其復雜的建筑系統。
該住宅由兩種實用建筑形式的簡單形狀組成:一種用于生活區的兩層農業谷倉形式,另一種用于車庫、倉庫和露臺的活動平頂結構。
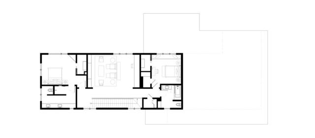
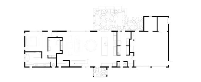
兩層樓有3665平方英尺(約340.49平方米)的空間:一樓是客廳、廚房和主人套房,二樓是娛樂室和兩間臥室。一扇兩層樓高的窗戶照亮了東面的入口和樓梯;它設計得如同在黑夜里像一盞溫暖的迎賓燈。
西墻上的大窗戶可以看到場地后部大木河(Big Wood River)的日落景色。為了協調和補充主導7英畝場地的白楊林環境,de Reus選擇了深色的建筑外觀:黑色花旗松木壁板、石墨灰色的立縫金屬屋頂板、黑色鋁窗和黑色金屬車庫門。室內氛圍是一種現代小屋的感覺:使用質樸的橡木地板,墻面應用白色松木裝飾,顯示出紋理,但保護木材免受紫外線的照射。客廳里有一座黑色的鋼制壁爐,還有一塊花崗巖,與當地的花崗巖相映成趣。
Big Wood住宅的一些細節是按照房子主人的特殊要求設計的。de Reus的妻子想要一扇谷倉門,他把它放在化妝間和車庫里,而他的女兒則要求在臥室里有一個靠窗的座位。在現代谷倉建筑和山地環境中,設計了其他細節以支持這個現代小屋。馬克最喜歡的一些細節包括艾莉森·伯杰(Alison Berger)鑄造玻璃餐燈吊墜,它講述了該場地的歷史,即太陽谷小屋(Sun Valley Lodge)從天然泉水中切割冰塊的地方;Peter Zumthor設計了廚房島上方的吊燈;在天然花崗巖旁使用發黑和生銹的鋼材;一個突出的細節——壁爐架上突出的鋼架子是為de Reus在印度尼西亞居住時購買的巴厘島Singa雕塑而設計的。
▼住宅夜景
▼一層平面圖
▼二層平面圖
項目信息
建筑師:de Reus Architects
面積:3665平方英尺(約340.49平方米)
年份:2020年


服務熱線:15327288876




